ルームシェアルームメイトはルームシェア相手を探すための無料掲示板です

普通の賃貸として部屋を貸したい

大阪市内 2DK マンション 2件募集

投稿日: 2017年8月3日
更新日: 2017年8月3日

詳細情報 (No. 33458)

月額/金額 43,000円
住所 大阪府 大阪市 生野区 中川4-12-22
共用
シャワートイレ / バスタブ
個人・部屋設備
エアコン / 収納 / フローリング
建物
マンション
入居条件
要身分証明書 / 二人可 / 家族可

広告画像

写真全体を見たいときは写真の上でクリックしてください
間取り図 の画像 間取り図 の画像

詳細説明

マンション 【地下鉄千日前線 今里駅 徒歩13分、近鉄奈良線 今里駅 徒歩13分】
 
【物件概要】
■大阪市生野区中川4-14-16
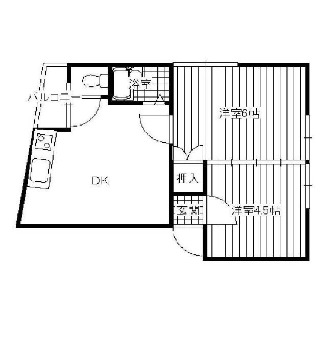
エニシダマンション中川  2DK 約45㎡
階段/築26年/日当たり良好/スーパー、コンビニ近くあり/外国人可能 /学生可能
設備 セパレート、ベランダ、エアコン付き、収納あり
家賃\43,000 管理費\5,000 水道代\2,000
保証会社費用\15,000

入居可能日 即入居可能

マンション 【地下鉄千日前線 鶴橋駅 徒歩5分、JR大阪環状線 鶴橋駅 徒歩5分】

【物件概要】
■大阪市生野区鶴橋1-4-16
エニシダマンション鶴橋  2DK+メゾネット 約50㎡
階段/築26年/日当たり良好/スーパー、コンビニ近くあり/外国人可能 /学生可能/焼肉屋が多数あり
設備 セパレート、ベランダ、エアコン付き、収納あり、メゾネットタイプ(階段があり上に部屋があります)
家賃\60,000 管理費\5,000 水道代\2,000
保証会社費用\21,000

入居可能日 即入居可能

格安でお部屋を貸したいと思っております、ぜひ、ご連絡下さい。
hirayama19840611@gmail.com
会員登録日: 2017年8月3日

投稿者

近隣の地図

大阪府 大阪市 生野区 中川4-12-22
34.663816237941 135.54214145913

🌐 公開質問

今の説明でわからない事がある時は、ログインして募集者に質問をしてみましょう。
ここに書いた質問は、他の人も見ることができます。

ダイレクトメッセージ

ログイン/会員登録
広告に応募するためには、会員登録が必要です。

近隣の広告

大阪市内ど真ん中 家賃14000円

普通の賃貸として部屋を貸したい

大阪市内ど真ん中 家賃14000円 個室 の画像
大阪府 大阪市 東成区
投稿者:たけし さん
更新日: 2011年3月20日
newオープン!駅から徒歩2分の完全個室シェアハウス★

ルームシェアで部屋を貸したい

no image
大阪府 大阪市 東成区
投稿者:Daigo さん
更新日: 2012年3月30日
女性専用シェアハウス「アルカディア」open!!

ルームシェアで部屋を貸したい

女性専用シェアハウス「アルカディア」open!! 間取り図 の画像
大阪府 大阪市 生野区
投稿者:CROSSDON さん
更新日: 2014年4月29日
一棟マンション、中古物件をシェアハウスにリノベーションするホテル建築専門の工務店です

修理・リフォーム引き受けます

no image
大阪府 大阪市 生野区
投稿者:葉月 さん
更新日: -

「完全無料」の代わりに「完全無保証」のサービスです。起こりうるトラブルを避けるのはあなた自身の責任です。特に、部屋を見ずにお金を送ったりしないようにしてください。

「LINEで続きを」など外部サービスに誘導する詐欺が発生しています。連絡方法を変えた場合、更に相手が本物か慎重になることをお薦めします。

不具合や改善のご提案等は support@roommate.jp までお寄せください