ルームシェアルームメイトはルームシェア相手を探すための無料掲示板です

ルームシェアで部屋を貸したい

【大船駅 徒歩約15分】個室2.9万円【美大予備校・鎌倉女子大学至近】

投稿日: 2018年5月29日
更新日: 2025年3月23日

詳細情報 (No. 35977)

月額/金額 29,000円
住所 東京都 千代田区 大船
路線
JR東海道本線(東京~熱海) : 大船
JR根岸線 : 大船
JR横須賀線 : 大船
JR成田エクスプレス : 大船
JR湘南新宿ライン : 大船
湘南モノレール : 大船
共用
炊飯器 / 電子レンジ / オーブン / 食洗機 / シャワートイレ / バスタブ / 掃除機 / アイロン / テレビ / DVDプレイヤー / ケーブルテレビ / 衛星放送
個人・部屋設備
布団 / ベッド / エアコン / インターネット / ベランダ / 部屋机 / 部屋椅子 / 収納 / フローリング / 駐車場 / バイク置き場 / 駐輪場
立地
コンビニ至近 / ターミナル駅 / 公園至近
建物
戸建て
掃除
掃除は大家 / 掃除は気づいた人がやる
ルール
禁煙
入居条件
要身分証明書 / 短期可
対応可能な外国語
英語可

広告画像

写真全体を見たいときは写真の上でクリックしてください
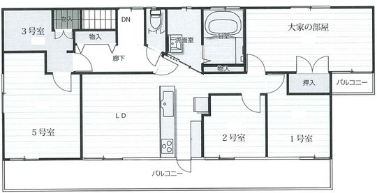
リビング の画像 間取り図 の画像 キッチン の画像 その他 の画像 個室 の画像

詳細説明

女性限定での募集です。
美大予備校や鎌倉女子大学に近いため、短期間の入居にも適しています。

【1号室】(女性一名入居中)
約8.3㎡
南向き(2重サッシ),バルコニー有り,東向き窓有り
エアコンあり
居室鍵付き

【2号室】(女性一名入居中)
約7.0㎡
南向き(2重サッシ),バルコニー有り
エアコンあり
居室鍵付き

【3号室】(即入居可)
29,000円/月
約5.6㎡
西向き
エアコンあり
居室鍵(南京錠)付き

【5号室】(女性一名入居予定)
約13.9㎡
南向き(2重サッシ),バルコニー有り,西向き窓有り
エアコンあり
居室鍵付き

【各居室の設備について】
各居室の写真に写っている家具類は、ご要望に応じて別の居室に移動したり、撤去したりできます。
その他の家具・家電を追加で設置したり、布団をお貸しすることもできます。

【共用スペース】
LDK 約20㎡
賃貸住宅ではありえない、分譲住宅よりも豪華な設備が揃っています。
・継ぎ目が無く汚れにくい、トクラス製人造大理石カウンターオープンキッチン
・汚れが直ぐとれる、ガラストップ三口ガスコンロ
・トクラスオリジナル構造でそうじがし易い、ガスコンロ連動換気扇
・多機能ヘルシーな、シャープ製ヘルシオ スチームオーブンレンジ
・507Lフレンチドア・自動製氷機能付き 三菱電機製冷蔵庫
・ソフトクローズが心地良い、パモウナ製食器棚
・ひろびろゆったりワイドバスタブ 1621サイズ トクラス製バスルーム
・5面ミラーで朝の混雑にも対応 トクラス製シャワー洗面化粧台
・全自動洗濯機
・自動全チャンネル録画機能付き 東芝製58型4Kテレビ
・全部屋エアコン付き
・吸引力,持続性に秀でたキャニスター形掃除機
・お手軽・便利で、ふとん掃除用パワーノズルも付いた、エレクトロラックス製スティック形掃除機

その他ご要望があれば、適宜追加します。
大家は別宅で生活しているため共有スペースの清掃は各自でお願いします。(月1回くらい管理・清掃のために来訪します)

【共益費(水道,電気,ガス)】
水道光熱費は、事前に5,000円/月いただきますが、
当月の実費が確定した後それを入居人数で割って、清算します。
各自が節約するほど、入居者数が多いほどお得になります。

【条件】
敷金・礼金 0円
前家賃
女性限定
年齢:50歳以下(健康上のリスクのため)
安定した収入のある方
(学生さんが入居される場合、保護者様が契約者となっていだだきます)
外国人 OK
ペット不可
喫煙不可
契約期間 1年毎に更新
身分証明書を提示いただきコピーをとらせてもらいます

【入居者間のトラブル対応】
入居者間のトラブルは、状況に応じて大家(私)が仲裁しますので、後からの入居であっても心配はいらないと思います。

随時見学を受け付けます。
ご不明点はお気軽にお問合せ下さい。
会員登録日: 2018年5月29日

投稿者

🌐 公開質問

今の説明でわからない事がある時は、ログインして募集者に質問をしてみましょう。
ここに書いた質問は、他の人も見ることができます。

ダイレクトメッセージ

ログイン/会員登録
広告に応募するためには、会員登録が必要です。

「完全無料」の代わりに「完全無保証」のサービスです。起こりうるトラブルを避けるのはあなた自身の責任です。特に、部屋を見ずにお金を送ったりしないようにしてください。

「LINEで続きを」など外部サービスに誘導する詐欺が発生しています。連絡方法を変えた場合、更に相手が本物か慎重になることをお薦めします。

不具合や改善のご提案等は support@roommate.jp までお寄せください