ルームシェアルームメイトはルームシェア相手を探すための無料掲示板です

ルームシェアで部屋を貸したい

【短期滞在】広島駅徒歩圏内1泊〜5ヶ月OK家具家電付き広々スペース

投稿日: 2019年5月6日
更新日: 2021年5月8日

詳細情報 (No. 39237)

月額/金額 35,000円
住所 広島県 広島市 南区 西蟹屋
路線
JR山陽本線(三原~岩国) : 広島
JR芸備線 : 広島
JR呉線 : 広島
JR可部線 : 広島
広電1号線(宇品線) : 広島駅
広電1号線(宇品線) : 猿猴橋町
広電2号線(宮島線) : 広島駅
広電5号線(皆実線) : 広島駅
広電5号線(皆実線) : 猿猴橋町
広電6号線(江波線) : 広島駅
共用
炊飯器 / 電子レンジ / オーブン
個人・部屋設備
布団 / ベッド / エアコン / インターネット / フローリング /
立地
駅10分以内 / コンビニ至近 / ターミナル駅 / 公園至近
建物
戸建て
費用
光熱費込み
掃除
掃除は大家 / 掃除は気づいた人がやる
ルール
禁煙 / 仕事場利用可
入居条件
要身分証明書 / 短期可

広告画像

写真全体を見たいときは写真の上でクリックしてください
間取り図 の画像 個室 の画像 個室 の画像 キッチン の画像 シャワー の画像

詳細説明

スペースに余裕ができたため、シェアメイトを募集します。
ユースホステルとしての他、事務所利用などの用途にも対応できればと思いますのでご相談ください。
設備利用料や光熱費、管理費は家賃に含み、追加徴収はありません。

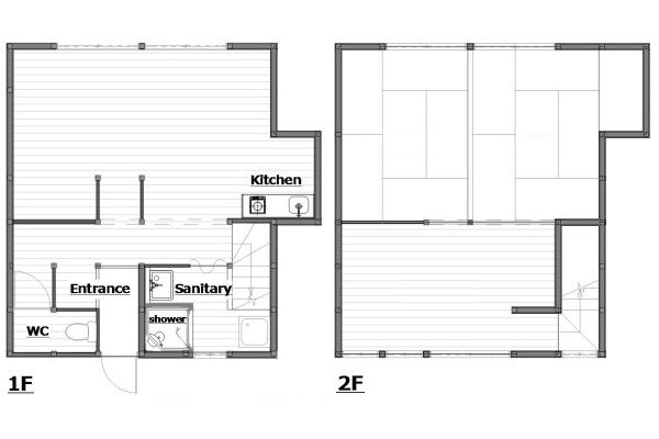
【間取り】
ワンルーム(間仕切りがないため)。
ただし、3LDK相当の広さがあります。
玄関と水回り設備は1階にあり、居室スペースは2階です。

【アクセス】
マツダスタジアム徒歩1分
JR「広島駅」徒歩9分
広島電鉄「猿猴橋町」徒歩7分
広島電鉄「的場町」徒歩7分

【設備】
冷蔵庫/電子レンジ/オーブントースター/ポット/炊飯器/食器類/ベッドマットレス×2/掛け布団×2/エアコン/ハンガーラック/机/椅子/LED照明機器/モニター付インターフォン/シャワーブース/独立洗面台/洗濯機/トイレ/掃除機/掃除用品/IHコンロ付きキッチン/Wifi/電源
※設備は変更になる場合があります。

【家賃(1人あたり)】
前払い制
1日3,000円
1ヶ月4.5万円(5月は3.5万円)
※滞在人数やご事情によりディスカウントに対応しますので、ご相談ください。

【利用条件】
最長2019年10月10日までの滞在のみ可。
喫煙者不可。
事前に本人確認書類(法人の場合は登記簿)の提示ができる方のみ受付。

【現在の入居者】
私(管理人)男性29歳1名のみ。

【備考】
本物件は、民泊新法の180日規制の対象外です。
会員登録日: 2019年5月6日

投稿者

🌐 公開質問 (質問数:4)

ちか さん 2019年5月25日
夜分遅くにすみません
まだシェアを希望されてましたら詳細を教えていただけると有り難いです
Joshua さん 🏠 投稿者 2019年5月25日
>> 1
まだ募集しています。
ピンポイントで回答しますので、どういったことが知りたいか具体的に質問いただけますか。

ちなみに現況は、管理人の私1人住まいです。
私は別に家を持っているので、ご希望に...

ダイレクトメッセージ

ログイン/会員登録
広告に応募するためには、会員登録が必要です。

「完全無料」の代わりに「完全無保証」のサービスです。起こりうるトラブルを避けるのはあなた自身の責任です。特に、部屋を見ずにお金を送ったりしないようにしてください。

「LINEで続きを」など外部サービスに誘導する詐欺が発生しています。連絡方法を変えた場合、更に相手が本物か慎重になることをお薦めします。

不具合や改善のご提案等は support@roommate.jp までお寄せください