ルームシェアルームメイトはルームシェア相手を探すための無料掲示板です

ルームシェアで部屋を貸したい

阪急京都線 桂駅から9分の物件

投稿日: 2009年3月3日
更新日: 2013年6月4日

詳細情報 (No. 631)

月額/金額 39,000円
住所 京都府 京都市 西京区
共用
炊飯器 / 電子レンジ / オーブン / バスタブ / 掃除機 / アイロン / テレビ / DVDプレイヤー / エアコン
個人・部屋設備
インターネット / ベランダ / 収納 / フローリング / / 駐車場 / バイク置き場 / 駐輪場
立地
駅10分以内 / コンビニ至近 / ターミナル駅 / 公園至近
建物
戸建て
掃除
掃除は当番制
ルール
友人宿泊可 / 家族宿泊可
入居条件
要身分証明書 / 短期可 / 二人可

広告画像

写真全体を見たいときは写真の上でクリックしてください
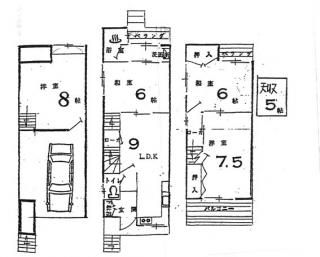
間取り図 の画像 個室 の画像 洗面台 の画像

詳細説明

同居人の1人が引っ越しをするので、部屋が開きますので募集をさせていただきます。
女性限定でお願い致します。
年齢は問いません。

桂駅から徒歩9分の一戸建。
間取りは5ldk、現在は2人で住んでいましたので、1人あたりに2ldkの間取りで、自室と作業室として割り振っています。
ガレージもあるので屋外での作業も可。車ならセダンの車高が駐車できます。
京芸や嵯峨美、大阪成蹊大(長岡京)が近いので、芸大生向きかもしれません。もちろん、社会人の方にも、大阪方面、河原町方面ともにアクセスしやすく、おすすめです。
南向きで閑静な住宅街です。
家電一式そろっています。(冷蔵庫は1人暮らしサイズのを個人でそれぞれ設置しています)
共用のimac(adobeソフト完備)あります。
バス・風呂別。洗面台あります。
お風呂は広いですよ~☆
開く部屋は和室6畳(北と西に窓があり、日中大変明るく、風通りもよく気持ちのよい部屋です)
フローリング8畳(ガレージ奥が部屋になっており、半地下の空間です。とても静かです。窓あります。ガレージから出入りができます)
の2室です。

気になる方はご連絡ください。
簡単にですが見学できます。

何卒、よろしくお願いします。
会員登録日: 2009年3月3日

投稿者

近隣の地図

京都府 京都市 西京区
34.9851044 135.6934196

🌐 公開質問

今の説明でわからない事がある時は、ログインして募集者に質問をしてみましょう。
ここに書いた質問は、他の人も見ることができます。

ダイレクトメッセージ

ログイン/会員登録
広告に応募するためには、会員登録が必要です。

近隣の広告

自転車さしあげます

不要品あげます

no image
京都府 京都市 西京区
投稿者:ケッタ譲る さん
更新日: 2013年6月10日
冷蔵庫 お譲りします。

不要品あげます

no image
京都府 京都市 西京区
投稿者:koko さん
更新日: 2013年6月7日
京都でペット可のシェアリング

ルームシェアで部屋を借りたい

no image
京都府 京都市 西京区
投稿者:xx さん
更新日: 2013年6月17日
3dk団地

サブレットで部屋を貸したい

no image
京都府 京都市 西京区
投稿者:たま さん
更新日: 2014年5月30日

「完全無料」の代わりに「完全無保証」のサービスです。起こりうるトラブルを避けるのはあなた自身の責任です。特に、部屋を見ずにお金を送ったりしないようにしてください。

「LINEで続きを」など外部サービスに誘導する詐欺が発生しています。連絡方法を変えた場合、更に相手が本物か慎重になることをお薦めします。

不具合や改善のご提案等は support@roommate.jp までお寄せください