ルームシェアルームメイトはルームシェア相手を探すための無料掲示板です

普通の賃貸として部屋を貸したい

中心地近く 静かな自然 外人の住む環境で英語での暮らし

投稿日: 2014年6月4日
更新日: 2020年1月3日

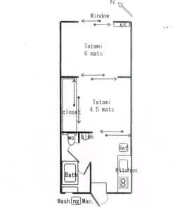
詳細情報 (No. 22299)

月額/金額 50,000円
住所 京都府 京都市 山科区 CASA SAKAWAKI
共用
電子レンジ / シャワートイレ / バスタブ
個人・部屋設備
布団 / エアコン / インターネット / ベランダ / 部屋机 / 部屋椅子 / 収納 / フローリング / / 駐車場 / 駐輪場
立地
駅10分以内 / コンビニ至近 / 公園至近
建物
マンション
ルール
禁煙 / 仕事場利用可
入居条件
要身分証明書 / 短期可 / 二人可 / 家族可
対応可能な外国語
英語可

広告画像

写真全体を見たいときは写真の上でクリックしてください
キッチン の画像 キッチン の画像 キッチン の画像 キッチン の画像 キッチン の画像

詳細説明

家具 寝具つき すぐに生活ができます。
シェアではなくて貸し切り
会員登録日: 2014年6月4日

投稿者

近隣の地図

京都府 京都市 山科区 CASA SAKAWAKI
34.9963022 135.7973755

🌐 公開質問

今の説明でわからない事がある時は、ログインして募集者に質問をしてみましょう。
ここに書いた質問は、他の人も見ることができます。

ダイレクトメッセージ

ログイン/会員登録
広告に応募するためには、会員登録が必要です。

近隣の広告

京都市内で物件を探しています。

ルームシェアで部屋を借りたい

no image
京都府 京都市 東山区
投稿者:元神奈川県民 さん
更新日: 2013年6月5日
3/10~一ヶ月間

サブレットで部屋を貸したい

no image
京都府 京都市 東山区
投稿者:kana さん
更新日: 2013年6月8日
オーブンレンジ譲ります

不要品あげます

no image
京都府 京都市 東山区
投稿者:サティ さん
更新日: 2013年6月7日
京都市山科区のファミリー向け戸建2LDK住宅です。(1階リフォーム済/オール電化/ペット可/駐車場あり/DIY可/角地)

普通の賃貸として部屋を貸したい

no image
京都府 京都市 山科区
投稿者:4ho さん
更新日: 2020年3月2日

「完全無料」の代わりに「完全無保証」のサービスです。起こりうるトラブルを避けるのはあなた自身の責任です。特に、部屋を見ずにお金を送ったりしないようにしてください。

「LINEで続きを」など外部サービスに誘導する詐欺が発生しています。連絡方法を変えた場合、更に相手が本物か慎重になることをお薦めします。

不具合や改善のご提案等は support@roommate.jp までお寄せください